
Typ av parkeringsplats
3 rok
Fastighet
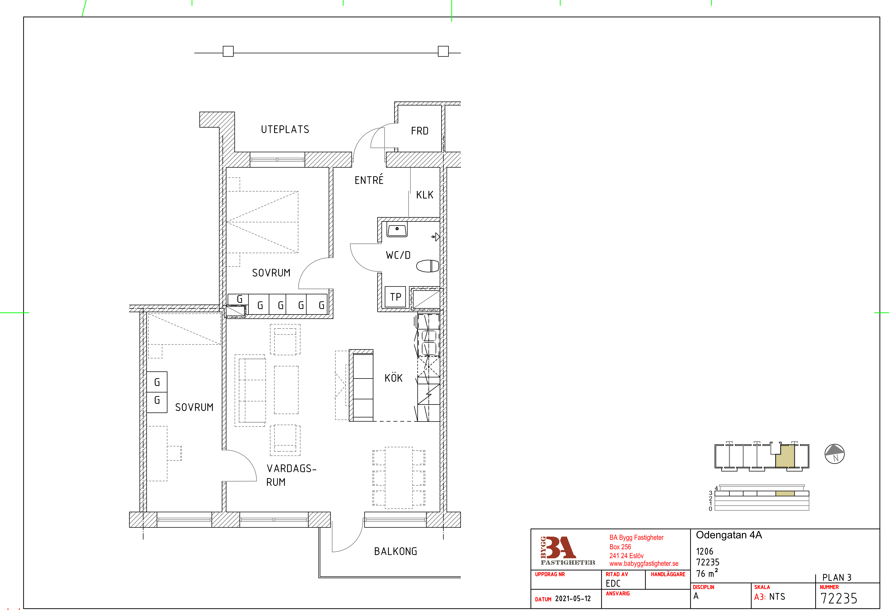
Adress
odengatan 4
Postadress
24131
Lägenhetsnr
1206
Våningsplan
3
Antal rum
3
Yta
76.00 m2
Hiss
Ja
Hyra
10 899 kr
Ledig från
2026-02-01
Hyran avser 2025 år höjning.
Kabeltv-avgift tillkommer med 85 Kr/månad
Bredbandsavgift tillkommer med 170 kr/månad 50 Mbit

